|

G1010系列氧气分析仪
采用电解电池方式分析氧气含量
经过实践验证的专业气体分析仪制造商
可测量 ppm或%氧含量等级
可选配件用于危险区域
可选适合不同应用的电池
远程或内置传感器
可选采样系统

应用
氮气( N 2 )发生器
惰性气体系统
气体分离
高炉炉气
沼气
手套箱
气化
包装
G1010氧气(O 2 )分析仪可用于多种要求精确测量氧气( O 2 )等级的应用 。无论是 ppm或%等级,安全或危险区域,不同的生产条件或工况,G1010的配置均可满足您的应用需求。可选择各种输出、交流或直流供电型号、可选氧气(O 2 )电池或样气预处理。
在很多生产条件下需要对氧气( O 2 )进行测量,已确认是否存在及含量 。但是,最常见的需求是测量混杂在其他气体中的氧气( O 2 ),如制氮气( N 2 )过程。有氧加工过程和要求人工干预的情况(如为确保安全的进入腔室执行维护工作)均需要测量氧气( O 2 )含量。某些加工过程只有在无氧的情况下才可有效进行,如炉气;其他应用则要求处于氧气( O 2 )含量较低的等级以确保安全。如惰性气体保护。
根据不同的应用需求可选择各类电解电池 。标准 ‘N’电池量程范围较宽(从较高的ppm级到50%含量等级)。‘L’电池用于精度要求较高的ppm等级实现测量,它也可工作于%等级(但此时使用寿命较短)。‘E’电池用于测量弱酸性气体(如二氧化碳CO 2 )中的氧气( O 2 ) %等级,
‘ H ’ 电池则特别适合于氢气( H 2 )环境中的低 ppm氧气(O 2 )应用。 Hitech将为客户提供适合特定应用的电池相关信息。
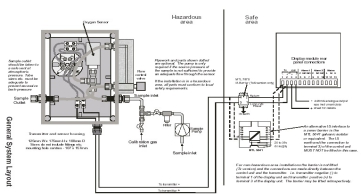
配置可选项 。背面装有电池的标准配置最方便、经济。此外,用户可选配流量计和调节阀的远程传感器。但需要考虑电缆长度或危险区域的影响,变送器也可安装在传感器机箱内。
根据工艺条件,也可选择不同的样气预处理系统(标准或定制 )。通过整合过滤器、泵和调节器,提供合适的样气。旁路分流系统可实现更长的距离(从生产装置到分析仪)。 Hitech工程师将在获得完整的气体含量情况后,为您推荐合适的系统。
对于危险区域应用 ,可将传感器远程安装在危险区域内,并通过 MTL齐纳栅链接至安全区域的电子显示设备。用户也可以选择将电子显示设备安装在Exd防爆箱内。

技术参数
氧电池的使用环境
| 电池类型 |
适用于背景气体类型 |
N |
N2 Ar He |
| E |
N2 Ar He CO2 CH4 CO和H2 |
| L |
N2 Ar He |
| H |
N2 Ar He H2 |
稳定性
<2%读数/月或1ppm,取最大值
样气流量
100-300毫升/分钟(最适度)
1000毫升/分钟(最大)
样气温度范围
-5℃至+40℃
RH<100%(非冷凝)
样气连接
入口和出口:适用于 0.25英寸(或6毫米)
外径软管的 ¼” 密封压缩接头
响应速度
T 90 :根据传感器和浓度而不同 -通常为3s(%等级),20s(ppm等级)
模拟输出
0-5伏(最低负荷10KΩ)或4-20毫安(最高负荷300Ω)
绝缘:最高 30伏交流电压,70伏直流电压
G1010/G1010R/G1010X
用户可编程
G1010TX/G1010TXX
工厂设定(参阅说明书以了解详情)
报警输出
2个报警器,用户可编程电压干节点、可跨接
环境工作范围
0℃至+40℃
RH<80%(非冷凝)
功率
110-120伏或220-240伏交流电压,
50/60赫兹或24伏直流电压
箱体
G1010增强型玻化纤维,Noryl面板
安装式
净重: 1.0公斤
尺寸(毫米) 96宽*96高*196长
可选件
P55可锁定透明门
EExd电气防爆箱
MTL隔离式安全栅
*(标配齐纳式安全栅)
订购信息
产品名称 |
电池类型 |
测量范围 |
说明 |
G1010 |
N |
100ppm至50% |
电池安装在背面,量程自动修正后显示 |
G1010 |
E |
0.1%至100% |
G1010 |
H |
10ppm至10% |
G1010 |
L |
1ppm至10% |
G1010R |
N |
100ppm至50% |
传感器外置于IP65机箱内(内置流量计和流量控制阀),量程自动修正后显示。传感器电缆最大长度为3米。用于H&L电池的传感器电缆不得超过1米。 |
G1010R |
E |
0.1%至100% |
G1010R |
H |
10ppm至10% |
G1010R |
L |
1ppm至10% |
G1010X |
N |
100ppm至50% |
传感器外置于IP65机箱内(内置流量计和流量控制阀),量程自动修正后显示。配置的齐纳式安全栅未连接,传感器适用于危险场所。用于H&L电池的传感器电缆不得超过1米。 |
G1010X |
E |
0.1%至100% |
G1010X |
H |
10ppm至10% |
G1010X |
L |
1ppm至10% |
G1010Tx |
N |
0至5000ppm,5.00%或25%量程可选 |
面板安装式,设备装置包括:外置于IP65机箱内的传感器,4-20mA变送器、流量计和流量调节阀。可用于传感器电缆长度>3米的应用需求。(必须指定测量范围)。 |
G1010Tx |
E |
0至5%、25%、100%量程可选 |
G1010Tx |
H |
0至500ppm或5000ppm量程可选 |
G1010Tx |
L |
0至50ppm、500ppm或5000ppm量程可选 |
G1010TxX |
N |
0至5000ppm,5.00%或25%量程可选 |
面板安装式,设备装置包括:外置于IP65机箱内的传感器,4-20mA本安型变送器、流量计和流量调节阀,提供的齐纳式安全栅未连接。可用于传感器电缆长度>3米的应用需求。(必须指定测量范围)。 |
G1010TxX |
E |
0至5%、25%、100%量程可选 |
G1010TxX |
H |
0至500ppm或5000ppm量程可选 |
G1010TxX |
L |
0至50ppm、500ppm或5000ppm量程可选 |
|